
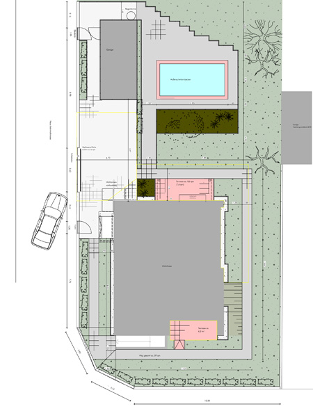
Gestaltung Außenanlage
Vor der Sanierung:














Abdichtung Kellerwände (Horizontalsperre)

Abdichtung Kellerboden
|
Umbau und energetische Sanierung eines Wohnauses
in Neu-Edingen (2011-2012)
Im Jahre 2011 wurde unser Büro zur Planung und
Ausführung der Aufstockung und der energetischen Sanierung des
Wohnhauses
(KfW-Energieeffizienzhaus 85) mit folgenden Maßnahmen beauftragt:
- Trockenlegung des Kellergeschosses.
- Erneuerung der Abwasserleitungen innerhalb und
außerhalb des Grundstückes bis zur Haupt-
kanalisation.
- Erneuerung der gesamten Frischwasser- und
Heizleitungen.
- Aufstockung des Dachgeschosses mit Herstellung von
2
Gauben. Das Dach wird mit 160 mm Aufsparren-
dämmung WLG
024
isoliert.
- Umbau der weiteren Stockwerke.
- Neugestaltung der Außenanlage.
- Sanierung und Neugestaltung des Schwimmbeckens.
- Austausch der Heizungsanlage gegen eine Gas-
Brennwertanlage.
- Solarthermie mit Warmwasser- und
Heizungsunterstützung.
- Lüftungsanlage mit Wärmerückgewinnung.
- Austausch der Fenster gegen 3fachverglaster
Holzfensterelemente mit
Aluverblendung.
- Fassadendämmung 160 mm WLG 032.
- Dämmung der Kellerdecke 80 mm WLG 035.
Die Balkonplatten aus Stahlbeton wurden abgerissen, und
durch termisch
getrennte Balkonplatten ersetzt.
Wie bei jedem Projekt von uns wurde hier neben technisch
hoher Qualität
großer Wert auf
die Architektur und auf die Gestaltung gelegt.
zurück zur
Projektliste
Nach der Sanierung (Fotos: M. Sarikhani):














Abdichtung Kellerwände (Horizontalsperre)

Abdichtung Kellerboden
|